Fortune Kiosk
Elderly-friendly Community Renovation
2 Jln Batu, Singapore 431002
Redesigns aging Singapore HDB flats into a self-sufficient vertical community to reduce elderly isolation through intergenerational interaction, multifunctional spaces, and sustainable economic participation
.
Redesigns aging Singapore HDB flats into a self-sufficient vertical community to reduce elderly isolation through intergenerational interaction, multifunctional spaces, and sustainable economic participation .
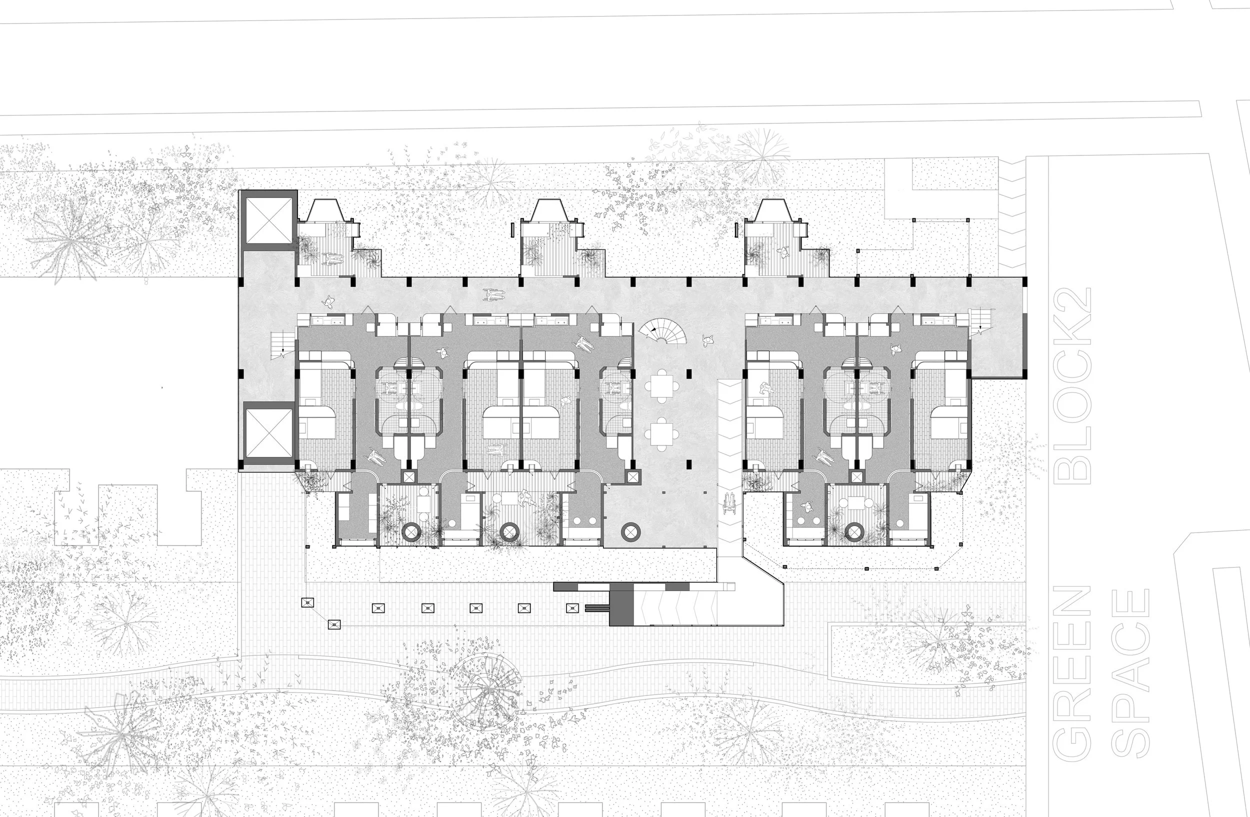
To tackle Singapore’s aging population, this initiative transforms a 3-storey HDB block in Tanjong Rhu into a self-sufficient vertical community, merging private aging-friendly units with shared spaces (shops, gardens, workshops). Here, seniors actively manage services and engage with younger generations. Modular upgrades, foldable walls, and "interaction nodes" (e.g., corridor gardens) foster spontaneous connections, while a sustainable economy lets seniors earn income through community commerce. By redefining elders as cultural leaders and collaborators, the project combats loneliness and revitalizes urban social bonds.










Xu Minhao
xuminhao98@gmail.com
(+65) 93625002
Minhao, a recent graduate spatial designer, crafts emotionally resonant spaces through experimental materials/ tructures, intertwining interiors/ architecture with diverse cultural influences. Proficient in 3D software and graphic tools, he meticulously balances spatial rhythms, furnishings, and human interaction. Eager to collaborate across disciplines, his work bridges functional storytelling with lived experiences.